top of page


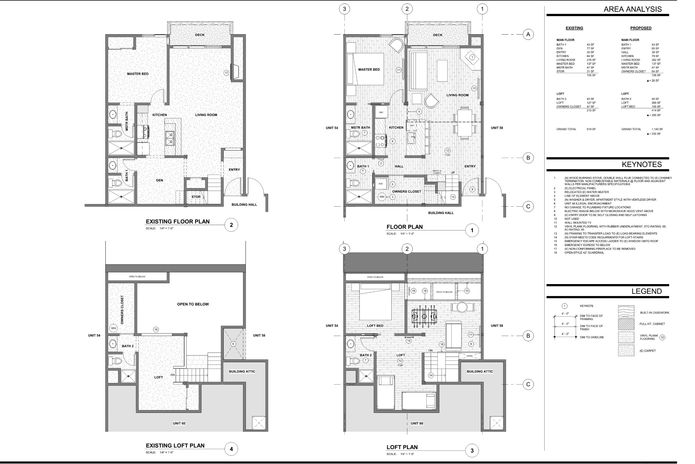
Mammoth Lakes Loft
Remodel Design-Build Package, including Interior Design
Property Details
Property Type
Bedrooms
2
Size
1200
Floors
2
Bathrooms
3
Year Built
Complete interior remodel package including architecture, construction and interior design. It started as a 1 bedroom + a sleeping loft but we were able to reconfigure to add on approximately 200sqft to turn it into a 2 bedroom + a loft.
Let's Discuss
Your Next Project
Fill out the form, or call us to
set up a free in-home or virtual consultation.
Service Areas In Person:
Ventura County, Los Angeles County, Madera and Mono Counties.
Service Areas Virtual:
Multiple Areas within the U.S,
2893 Reservoir Dr., Simi Valley, CA 93065
805-279-0224
bottom of page





